您的位置: > 凯发ag旗舰厅-凯发一触即发 > 重庆俏业家装饰 > 公司动态
当你事业有成,该如何享受生活?一起来看女老板的家,既有高级格调,又超级减压!
坐标:渝北区
楼盘:龙湖·尘林间
面积:160㎡
![]()
![]()
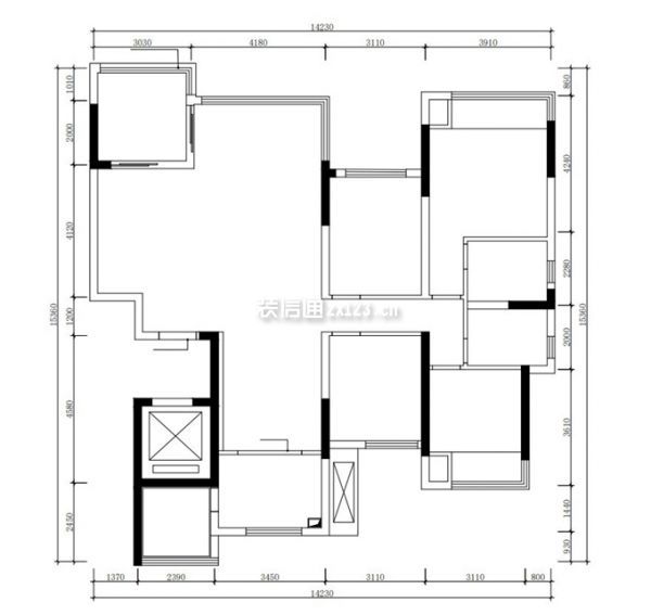
原户型四室两厅,三面采光,居住体验舒服,单梯入户,隐私感满满。
入户区设置转角鞋柜,独立玄关功能,门厅立柜遮挡视线,避免一眼望到室内。
小阳台包入客厅,更显方正,超大house彰显大格局。
主卧是改造重点,先拆飘窗扩容,再取消主卫隔墙,做下沉式处理,整体呈开放式布局直接连通休憩区,起居动线更简洁。
放上浴缸就能让业主随时体验放松疗法,次卧纳进来做半开放式衣帽间,u形布局,集储物、更衣、梳妆于一体,满足女孩一生的穿搭梦。
其余空间按原始功能规划,生活阳台叠加洗衣房功能,一厨一卫一餐厅,齐活了,还有两间次卧满足待客需求。
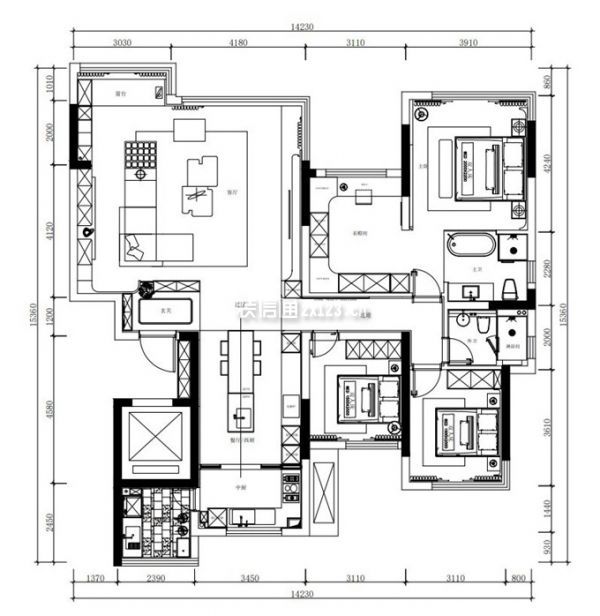
改造后的全貌长这样~再来看看案例实拍,你觉得怎么样呢?意见交流、户型改造需求,请在评论区留言!
关注重庆俏业家装饰,了解更多装修技巧
重庆市渝北区金开大道337号金弓·爱尚两江

在线预约
5秒搞定
匹配3位
设计大咖
设计3套
方案对比
全国免费咨询热线
4008-486-123
凯发一触即发 copyright 2010-2023 zx123.cn,装信通装修平台 — 遂宁云匠网络科技有限公司版本所有,并保留所有权利。
免费热线:4008-486-123 icp备案证书号: |
免费申请
装修服务
客服回访
确认需求
三份报价
方案 p k
享第三方
装修保障