您的位置: > 凯发ag旗舰厅-凯发一触即发 > 重庆俏业家装饰 > 公司动态
给超级温柔的姐姐改造房子,家里常住人口不多,要求起居舒适,设计师将改造重点放在优化动线,打开空间,配合淡雅色系和极简家具,打造舒适城堡,重庆改造找俏业家,设计品质过硬~
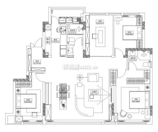
坐标:渝北区
楼盘:林山郡
面积:125㎡
![]()
![]()
入户设置玄关柜,中部镂空可置物,底部悬空设计可以放鞋,非常好做清洁,看起来也更加顺手,改变厨房进深短的问题,干脆打造“h”型布局,一边作烹饪区,一边作备菜区和蒸烤区,操作动线合理,整点“上班族10分钟快手菜”,做饭效率也更高。
客厅在将阳台纳入之后由竖厅变为横厅,转角沙发增强空间艺术感,客餐厅一体设计弱化功能区的划分,整块的区域更显宽阔。
闲置的次卧拆掉飘窗,改成宽阔大书房,一桌一椅,一整墙的书,打造独属于自己的精神岛屿。
主卧重视隐私性与舒适度,“l”型衣柜隔离出一个步入式衣帽间,储物多的同时还能起到隐私遮挡作用。
关注重庆俏业家装饰,了解更多装修技巧
重庆市渝北区金开大道337号金弓·爱尚两江

在线预约
5秒搞定
匹配3位
设计大咖
设计3套
方案对比
全国免费咨询热线
4008-486-123
凯发一触即发 copyright 2010-2023 zx123.cn,装信通装修平台 — 遂宁云匠网络科技有限公司版本所有,并保留所有权利。
免费热线:4008-486-123 icp备案证书号: |
免费申请
装修服务
客服回访
确认需求
三份报价
方案 p k
享第三方
装修保障