重庆凤凰湾现代风格120平米装修效果图案例-凯发ag旗舰厅

凯发ag旗舰厅-凯发一触即发
一站式装修平台,为您提供优质装修服务!

凤凰湾120平现代风格装修案例

您的位置: > 凯发ag旗舰厅-凯发一触即发 >

凤凰湾120平现代风格装修案例

案例名称:凤凰湾120平现代风格装修案例

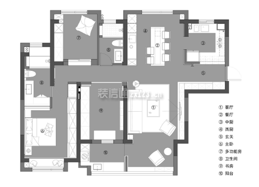
小区:凤凰湾风格:现代面积:120㎡户型:三居室造价:16.8万装修方式:整装

设计理念:真正的奢华是属于自己的生活方式,是不会被外界改变的有趣灵魂,是对一种艺术感的坚持。

免费预约
设计方案
设计理念: 放空一切,用心感受~
  • 凤凰湾120平现代风格装修案例 1/6
  • 凤凰湾120平现代风格装修案例 2/6
  • 凤凰湾120平现代风格装修案例 3/6
  • 凤凰湾120平现代风格装修案例 4/6
  • 凤凰湾120平现代风格装修案例 5/6
  • 凤凰湾120平现代风格装修案例 6/6
装修就上装信通,省钱省心好轻松
  • 了解装信通
  • 模块指南
  • 帮助中心
装信通app
装信通app二维码
微信公众号
装信通微信公众号
微信客服
装信通微信二维码

全国免费咨询热线

4008-486-123

凯发一触即发 copyright 2010-2024 zx123.cn,装信通装修平台 — 遂宁云匠网络科技有限公司版本所有,并保留所有权利。
免费热线:4008-486-123    icp备案证书号:      |

1

免费申请
装修服务

2

客服回访
确认需求

3

三份报价
方案 p k

4

享第三方
装修保障

您的信息将被严格保密,《》

今天已有526位业主预约了免费精准报价
网站地图